- Le petit monde d'Equation
- Posts
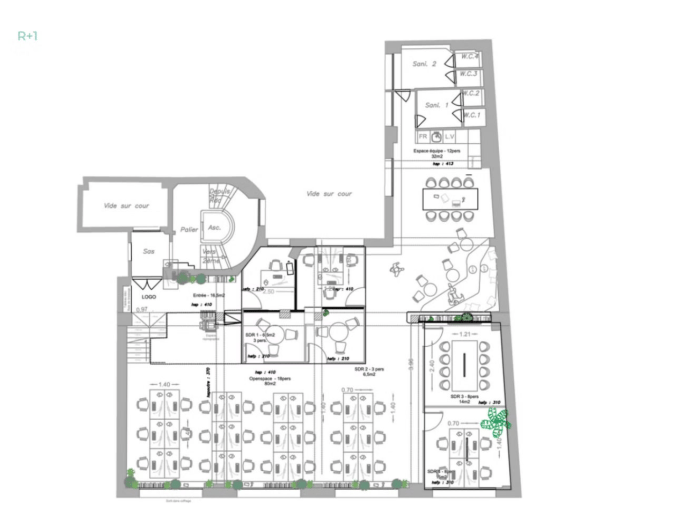
- Superbes bureaux de 247 m2 à vendre
Superbes bureaux de 247 m2 à vendre
Au coeur du 9ème arrondissement

Superbes bureaux rénovés récemment
Rénovation haut de gamme
Grand espace ouvert, salle de réunion et espace détente
Modèle C OK
Nicolas Vial, en charge du dossier, répondra à toutes vos questions sur ces bureaux.



![]() | 06 80 35 25 60 www.equation-sie.com |

Reply